





| 所在地 | 入間郡三芳町大字藤久保 |
|---|---|
| 価格 | 成約済 |
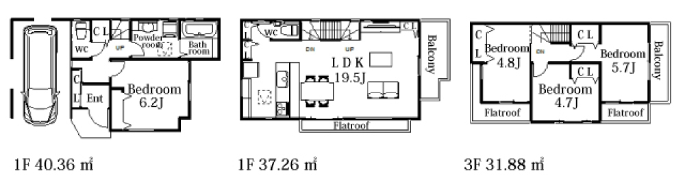
| 間取り | 4LDK |
| 間取詳細 | LDK19.5帖・洋6.2帖・洋4.8帖・洋4.7帖・洋5.7帖 |
| 敷地面積 | 64.28u |
| 建物構造 | 木造スレート 葺 3階建 |
| 建物面積 | 109.50u |
| 建ぺい率・容積率 | 60% 200% |
| 都市計画 | 市街化区域 |
| 用途地域 | 第一種中高層住居専用地域 |
| 接道状況 | 4.0m×4.0m公道 |
| 完成予定 | 平成29年3月末 |
| 地目 | 宅地 |
| 交通手段 | 東武東上線 鶴瀬駅 徒歩15分 |
| 取引形態 | 売主 |
| 権利形態 | 所有権 |
| 引渡日 | 相談 |
| 現況 | 建築中 |
| 設備 | 東京電力・公営水道・公共下水・都市ガス |
| その他 | 建築確認番号 第16UDI3S建01055号 東武東上線の不動産の事なら、棟立建設にお任せ下さい。 |